2.862 visninger
|
Oprettet:
hjælp til jema lift, vil ikke køre op? {{forumTopicSubject}}
hej
har købt en ny jema JA3200T lift, og har fået den sat op osv, men problemet er at den ikke vil køre op på tryk knappen? alt andet virker låse, køre ned osv.
kan også få liften til at køre op hvis jeg trykker direkte på "motorværnet" eller hvad den nu kaldes?
nogen der har forstand på det ?
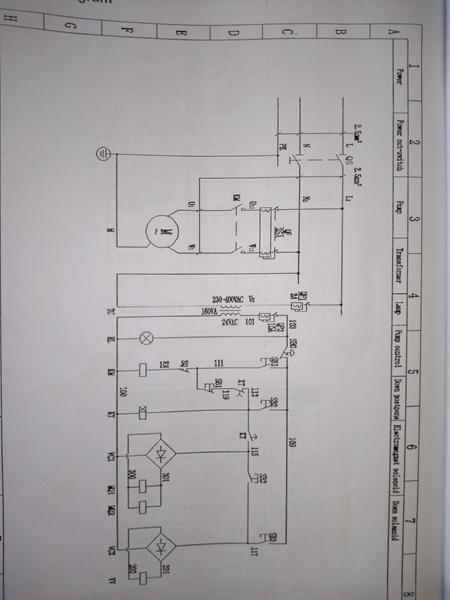
alt er koblet rigtigt til, dog har producenten valgt at bytte om på en fase og nul til motoren, men det er jo bare byttet tilbage, men kan satme ikke greje hvorfor den ikke trækker "relæet" til sig så liften kører op.
nov 2012
Følger: 3 Følgere: 15 Biler: 5 Emner: 97 Svar: 3.081
jul 2014
Følgere: 14 Svar: 2.877
nov 2012
Følger: 3 Følgere: 15 Biler: 5 Emner: 97 Svar: 3.081
mar 2008
Følger: 28 Følgere: 29 Biler: 10 Emner: 81 Svar: 830
jul 2014
Følgere: 14 Svar: 2.877
nov 2012
Følger: 3 Følgere: 15 Biler: 5 Emner: 97 Svar: 3.081
nov 2012
Følger: 3 Følgere: 15 Biler: 5 Emner: 97 Svar: 3.081
nov 2012
Følger: 3 Følgere: 15 Biler: 5 Emner: 97 Svar: 3.081
jul 2014
Følgere: 14 Svar: 2.877
nov 2012
Følger: 3 Følgere: 15 Biler: 5 Emner: 97 Svar: 3.081
jul 2014
Følgere: 14 Svar: 2.877
nov 2012
Følger: 3 Følgere: 15 Biler: 5 Emner: 97 Svar: 3.081
aug 2008
Følger: 11 Følgere: 32 Biler: 3 Emner: 59 Svar: 11.008
Da jeg satte min om i sin tid, havde jeg en elektriker nede for hvor jeg skulle tilslutte strøm.
Men han ville have at jeg skulle have lavet om på hele installationen
Jeg gjorde så som jeg selv mente
Men styrestrøm fra løfte kontakten skal jo have forbindelse til relæet du har merkeret, da det jo styres af kontakterne.
nov 2012
Følger: 3 Følgere: 15 Biler: 5 Emner: 97 Svar: 3.081
nov 2012
Følger: 3 Følgere: 15 Biler: 5 Emner: 97 Svar: 3.081
nov 2012
Følger: 3 Følgere: 15 Biler: 5 Emner: 97 Svar: 3.081
kunne man tænke sig relæet ikke er for godt ?
jul 2014
Følgere: 14 Svar: 2.877
feb 2017
Følger: 1 Svar: 3
Skulle gerne være en lille blå kasse med en vippearm på. Prøv at skift position på den og klik op. Hvis det virker er den sat på NO klemmen i stedet for NC.
feb 2017
Følger: 1 Svar: 3
okt 2010
Følger: 2 Følgere: 15 Emner: 17 Svar: 3.179
Mvh kp
aug 2008
Følger: 11 Følgere: 32 Biler: 3 Emner: 59 Svar: 11.008
Jeg kunne godt tage billede af min, men den kører jo på 230v men i reglen er funktionen jo den samme om det er 400v.
Men billede bliver ikke noget jeg tager Idag.
nov 2012
Følger: 3 Følgere: 15 Biler: 5 Emner: 97 Svar: 3.081
Der er ende stop på, men der stod ikke de 2 numre på ledningerne, men du mener den skal side imellem de 2?
nov 2012
Følger: 3 Følgere: 15 Biler: 5 Emner: 97 Svar: 3.081
Nej det gør den ikke
nov 2012
Følger: 3 Følgere: 15 Biler: 5 Emner: 97 Svar: 3.081
aug 2008
Følger: 11 Følgere: 32 Biler: 3 Emner: 59 Svar: 11.008
nov 2012
Følger: 3 Følgere: 15 Biler: 5 Emner: 97 Svar: 3.081
Mange tak for svar alle sammen
hjælp til jema lift, vil ikke køre op?